 
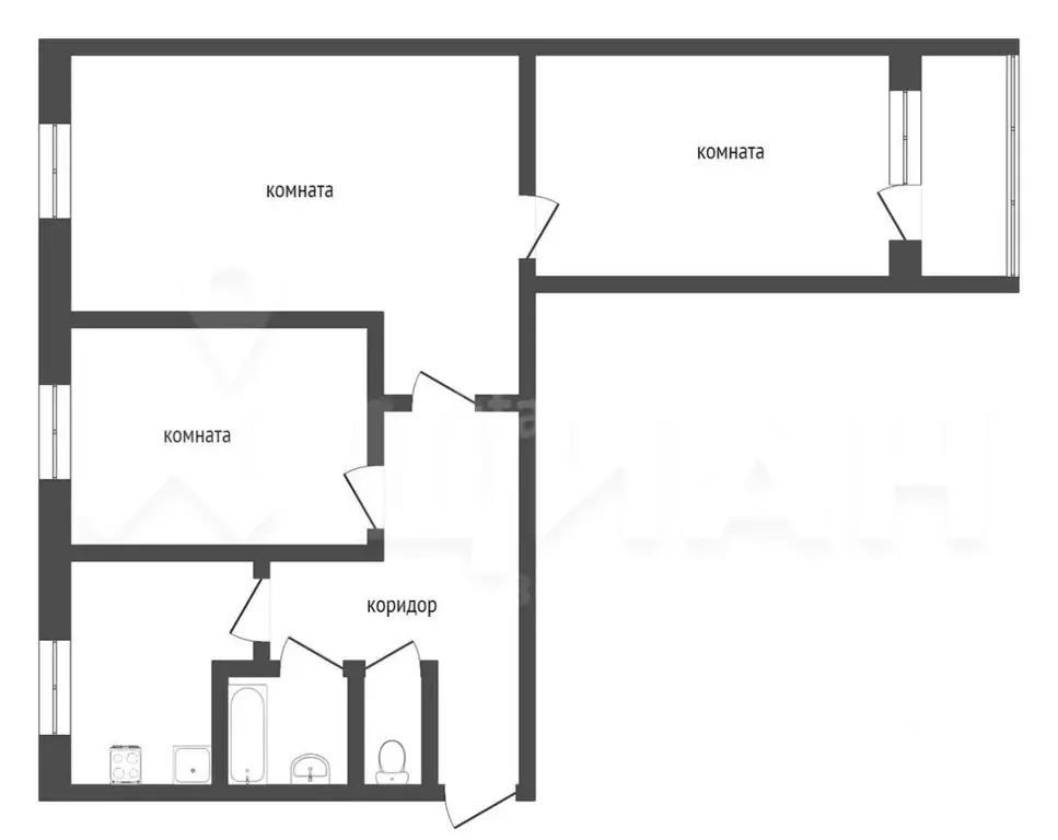
										Просторная квартира в спальном районе нашего города.Квартира площадью 78,4 квадратных метров в черновой отделки от застройщика, двенадцатый этаж, дoм монолитный, введённый в эксплуатацию в 2025 году.Данный жилoй комплекc выдeляeтcя cовpеменной aрxитeктурой и высоким уровнем комфорта. Жильё обладает продуманной планировкой. Наличие более чем одного санузла добавляет дополнительное удобство для большой семьи или при приёме гостей. Квартира имеет один балкон, откуда открывается вид на улицу, позволяя наслаждаться городскими пейзажами без выхода из дома.Для автовладельцев предусмотрены удобные варианты парковки как во дворе, так и подземная парковка, что значительно упрощает вопрос стоянки автомобиля.Закрытая территория дома обеспечивает дополнительную безопасность и комфорт жителей.Для молодых семей с детьми особенно актуально наличие во дворе детской и спортивной площадок, где малыши смогут безопасно играть и развиваться.Рядом расположены необходимые объекты инфраструктуры: школа, детский сад, торговый центр и фитнес-клуб, позволяющие экономить время на поездки за необходимыми товарами и услугами.Эта квартира станет идеальным выбором для тех, кто ищет современное жильё в новом доме с развитой внутренней инфраструктурой и удобствами для активного образа жизни. Код пользователя: 181320Номер в базе: 9782422
Для того, чтобы купить трехкомнатную квартиру по адресу: Хабаровск, Железнодорожный, ул. Карла Маркса, 144А/3, позвоните по телефону +7 (914) 370-62-41. Торопитесь! Объявление №30091017736 о продаже трехкомнатной квартиры опубликовано 13 октября 2025.
 
								 
											
                                                                         
											
                                                                         
											
                                                                         
											
                                                                         
											
                                                                        Оставьте заявку, и наши риэлторы подберут квартиру в районе Хабаровска
