7 625 750 Р 97 480 $ или 83 970

Информация о квартире

32 м2
Площадь
8 м2
Жилая
1
Комната
4
Этаж
24
Этажность

Дополнительная информация

Тип дома
монолит
Развернуть
Агент
+7 (984) 729-40-84
Начать чат с агентом

1-к кв. Хабаровский край, Хабаровск Слободская ул. (32.45 м)

СТАРТ ПРОДАЖ р-н пл. Блюхера - тихий центр города. Уссурийский бульвар, школы, детские сады в 10 мин пешком.Планируемая сдача дома - 1 квартал 2028 года. Рассрочка 0 на первый взнос до 1 года без увеличения стоимости квартиры Выгода до на старте продаж До конца ноября скидка 2 для участников СВО, медицинских работников, учителей, работников ОПКПросторная светлая 1-комнатная квартира 33-36 м. Здесь спальня, кухня-гостиная, комфортный санузел, гардеробная и постирочная, а также лоджия, которую можно оборудовать как зону отдыха или кабинет. Высокие потолки 2,85 - 3,30 м от стяжки пола, большие окна до 1,8 м и панорамные виды на двор-сад с лоджии - все это дает максимум света, легкости и свободного пространства. О ЖК: Архитектурная доминанта района. Концепция от известного архитектурного бюро PERGAEV Высокие потолки 2,85-3,30 м и большие окна до 1,8 м Приватная территория под видеонаблюдением. Детская площадка, воркаут, гриль-зона и места для отдыха, догхаб. Дизайнерские холл и отделка в подъезде На первом этаже клубная гостиная для соседей, колясочная, лобби с мягкими зонами, гостевой санузел Подземный паркинг с лифтом от квартиры до машины и усилителем сигнала связиУЛУЧШЕННАЯ ЧЕРНОВАЯ ОТДЕЛКА:> Выровненные стены> Стяжка пола > Окна с откосами, подоконниками и фурнитурой> Балкон с витражным остеклением > Сантехнические выпуски под установку оборудования> Горизонтальная система отопления> Подводка водоснабжения> Гидроизоляция в санузле> Распределительный щит для электропроводки> Системы вентиляции в кухонной зоне и санузле> Металлическая входная дверь Гардиан, которая не требует замены> Индивидуальные счетчики на все коммуникацииПредчистовая отделка с электрикой по всей квартире - 16 000 /мДевелопер КЕТОМ - 16 лет на рынке Хабаровска, 18 сданных объектов, безопасный эскроу-счет

Читать полностью
    Позвонить Написать
    7 625 750 Р97 480 $ или 83 970
    Агент
    +7 (984) 729-40-84
    Начать чат с агентом
    Похожие предложения
    1-к кв. Хабаровский край, Хабаровск Слободская ул. (32.95 м) - Фото 1
    1-комнатная квартира, общая площадь 32м², жилая 8м²

    СТАРТ ПРОДАЖ р-н пл. Блюхера - тихий центр города. Уссурийский бульвар, школы, детские сады в 10 мин пешком.Планируемая сдача дома - 1 квартал 2028 года. Рассрочка 0 на первый взнос до 1 года без увеличения стоимости квартиры Выгода до на старте продаж...
    • 32 м²
    • 1-ком
    • 2/24 эт.
    • монолит
    7 677 350 Р
    Агент
    +7 (984) Показать номер
    Посмотреть контакты
    1-к кв. Хабаровский край, Хабаровск Экополис жилой комплекс (34.5 м) - Фото 1
    1-к кв. Хабаровский край, Хабаровск Экополис жилой комплекс (34.5 м) - Фото 2
    1-комнатная квартира, общая площадь 34м², жилая 10м², кухня 12м²

    Квартира в ЖК Экополис в Индустриальном районе от застройщика TEN девелопмент Ключи в 3 квартале 2026 года. ЖК Экополис - целая экосистема, где для человека и его семьи есть все необходимое, и где жить комфортно, экологично и безопасно. Это новый...
    • 34 м²
    • 1-ком
    • 7/25 эт.
    • кирпичный
    7 503 000 Р
    Агент
    +7 (984) Показать номер
    Посмотреть контакты
    3-к кв. Хабаровский край, Хабаровск Южный мкр, ул. Рокоссовского ... - Фото 1
    3-к кв. Хабаровский край, Хабаровск Южный мкр, ул. Рокоссовского ... - Фото 2
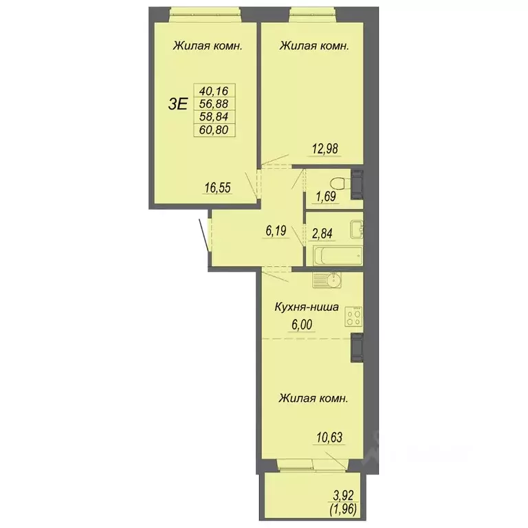
    3-комнатная квартира, общая площадь 58м²

    Продаётся 3-комнатная квартира в строящемся доме (Жилой дом 6), срок сдачи: IV-кв. 2025, общей площадью 58.84 кв.м., на 2 этаже. Новый жилой комплекс Маршал от Специализированного застройщика Дом Артасположен в г. Хабаровск на ул. Рокоссовского.
    • 58 м²
    • 3-ком
    • 2/10 эт.
    • панельный
    7 602 128 Р
    Агент
    +7 (983) Показать номер
    Посмотреть контакты
    3-к кв. Хабаровский край, Хабаровск Южный мкр, ул. Рокоссовского ... - Фото 1
    3-к кв. Хабаровский край, Хабаровск Южный мкр, ул. Рокоссовского ... - Фото 2
    3-комнатная квартира, общая площадь 58м²

    Продаётся 3-комнатная квартира в строящемся доме (Жилой дом 6), срок сдачи: IV-кв. 2025, общей площадью 58.84 кв.м., на 3 этаже. Новый жилой комплекс Маршал от Специализированного застройщика Дом Артасположен в г. Хабаровск на ул. Рокоссовского.
    • 58 м²
    • 3-ком
    • 3/10 эт.
    • панельный
    7 602 128 Р
    Агент
    +7 (983) Показать номер
    Посмотреть контакты
    3-к кв. Хабаровский край, Хабаровск Южный мкр, ул. Рокоссовского ... - Фото 1
    3-к кв. Хабаровский край, Хабаровск Южный мкр, ул. Рокоссовского ... - Фото 2
    3-комнатная квартира, общая площадь 58м²

    Продаётся 3-комнатная квартира в строящемся доме (Жилой дом 6), срок сдачи: IV-кв. 2025, общей площадью 58.84 кв.м., на 2 этаже. Новый жилой комплекс Маршал от Специализированного застройщика Дом Артасположен в г. Хабаровск на ул. Рокоссовского.
    • 58 м²
    • 3-ком
    • 2/10 эт.
    • панельный
    7 602 128 Р
    Агент
    +7 (983) Показать номер
    Посмотреть контакты

    Не нашли подходящего объявления?

    Оставьте заявку, и наши риэлторы подберут квартиру в новостройке в районе Хабаровска

    (0)